ECU, Wiring, Sensors
By redminime
#199071 Hey everyone, have a 95 coupe manual and was driving down the road with my buddy in a car behind me and he noticed that my reverse lights were on. While driving some more the lights went off but when i came to a complete stop they came back on and stayed on. Anyone have any ideas of what it could be? Where to start my trouble shooting? Any and all help would and will be greatly appreciated. Thanks
By Method
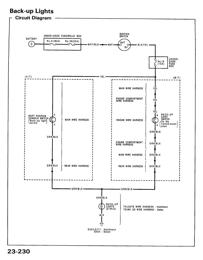
#199079 something to do with this circuit.

Image
User avatar
By Benj
#199093 needs a new back up switch :thumb: :thumb: should fix the prob... cuz its most likely stuck in the on position


gl